SPARRENLAAN STERKSEL
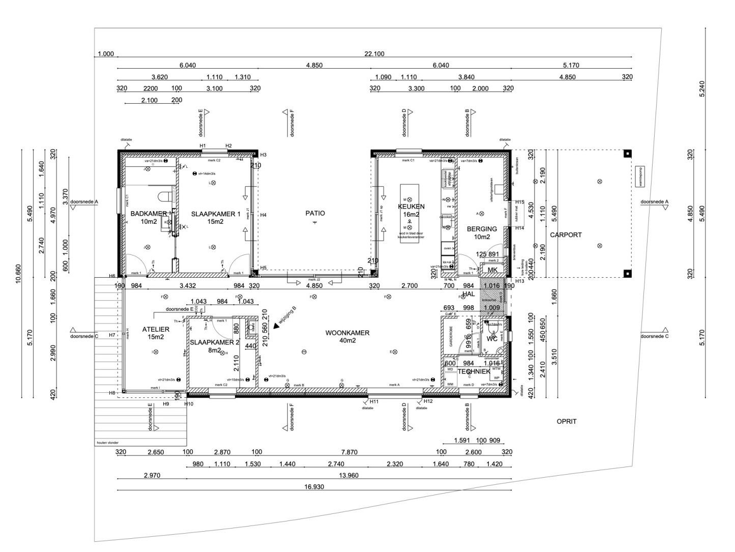
Nieuwbouw patiobungalow
De bungalow is opgebouwd uit relatief gesloten volumes met daartussen grote aluminium puien. Het geheel is verbonden door de continuïteit van het betonnen dak welke is voorzien van vegetatie. De carport markeert de entree van waaruit de woning zich manifesteert. Alle ruimtes zijn geschakeerd langs de denkbeeldige as die begint bij de entree en eindigt in het atelier. De hoge puien in het atelier aan de noord-oostgevel bieden een mooie lichtinval en zicht tot in de kruin van de eikenbomen. De keuken, woonkamer en hoofdslaapkamer grenzen aan de privacy biedende patio. De compositie van de openingen in de gevel volgt uit de functie van de binnenruimten en hun relatie tot de omgeving. Het houten terras bij het atelier markeert hier de overgang tussen privé en openbaar.






