GILZEWEG CHAAM
Moderne aanbouw met tuinhuis
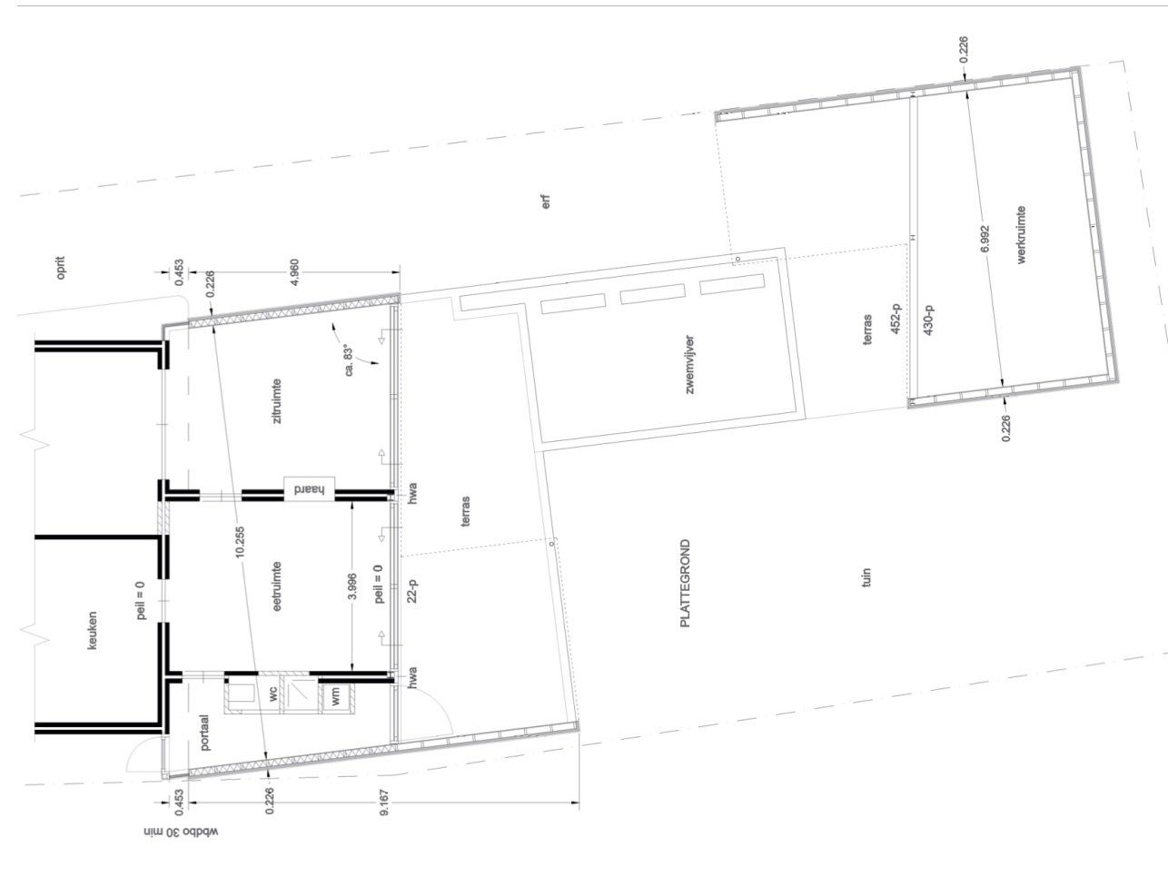
De contravorm van de aanbouw en het tuinhuis zijn ingegeven door de wijkende grenzen van het kavel. De vorm en de eenheid in materiaalgebruik versterken hun onderlinge relatie. De gevels bestaan uit zink en hout met daartussen aluminum puien op betonnen vloeren. De begane grond is uitgebreid met een portaal, eetkamer, zitkamer en deels overdekt terras. Het hoogteverschil in het kavel is gebruikt om het tuinhuis conform de wens van de opdrachtgever met een hoog plafond uit te voeren. De zwemvijver verbindt het tuinhuis met de woning en creëert privacy aan de zijde van de oprit.




