NRE TERREIN EINDHOVEN
Industriële look
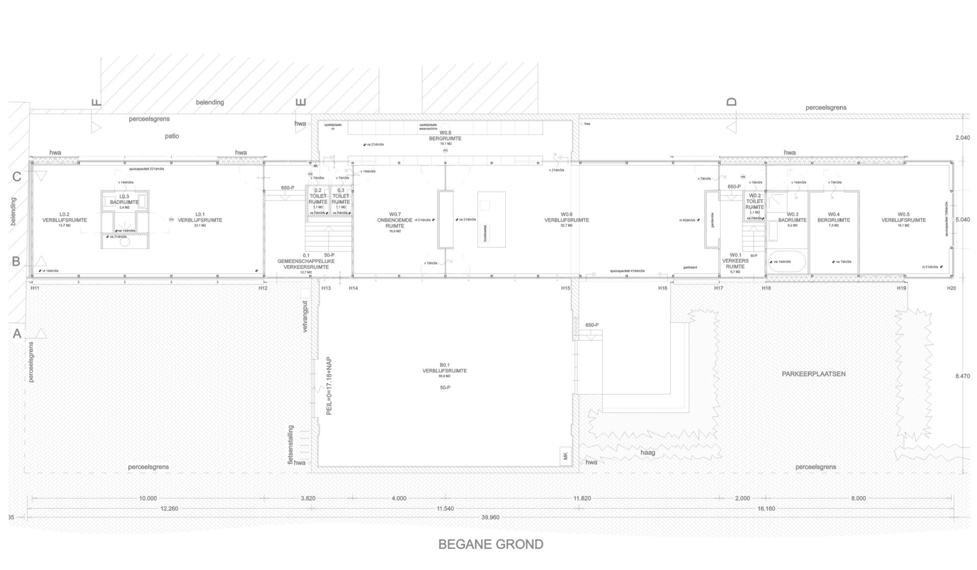
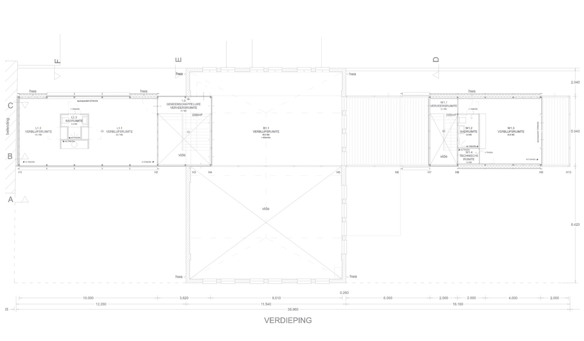
De uitbreiding met industrieel uiterlijk ontwikkelt zich vanaf het openbare plein aan de voorzijde dwars door de voormalige gasfabriek naar de private achterzijde. Twee royale B&B's kijken uit over het plein en hier is tevens de entree van de kookstudio. In de B&B's worden slaap- en zitgedeelte gescheiden door een vrijstaand volume met badkamer en pantry. De kookstudio bevindt zich in het bestaande gebouw op de entresol van de uitbreiding, waarbij de kwaliteit van één grote open ruimte middels de vide is behouden. Deze ruimte is niet nader ingedeeld met het oog op flexibel gebruik door de kookstudio, gasten, bewoners of derden. Het aangrenzende terras aan het plein kan bij dit flexibel gebruik betrokken worden. De woning is deels gesitueerd in de gasfabriek onder de kookstudio en loopt door naar de achterzijde. Vanuit de woonkeuken is er vol zicht op de karakteristieke oude spanten almede op de zitkamer met het verdiepte terras aan de achterzijde. Op de zitkamer is een groot dakterras en beide grenzen aan de entree van de woning met aansluitend de slaapvertrekken verdeeld over twee bouwlagen. Deze slaapvertrekken sluiten met een balkon en terras aan op de privacy van de tuin. De zinken gevelbekleding vormt een spel met licht door de gesloten en open lamellen. Achter de open lamellen en waar geen lamellen zijn bevinden zich grote glazen puien.





